

Nano Tech UV-C Ozone不銹鋼過水式臭氧紫外線燈結合了臭氧及紫外線的科技,可以確保游泳池的水質,也令泳者可安心舒適地暢泳。
1. 內置電子預選,可以確保游泳池的水質,減少對氯的使用,可令電源供應順暢
2. 殼體內壁鏡面拋光處理可產生內發射,增強高達35%以上消毒效果
3. 減少氯消耗量高達80%
4. 臭氧功能紫外線燈管壽命長達12000小時
5. 紫外線燈配定時器
6. 燈管更換時間提醒
產品單張
產品說明書
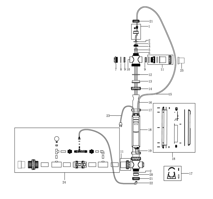
產品型號

| Product Name : 不銹鋼過水式紫外線殺菌器 | |||
| Product NO: 9130406(88049032) | |||
| Series: NT-UV87-TO(230V) | |||
| 項目 | 部件編號 | 中文描述 | 數量 |
| Item NO. | Part No. | Description Chinese | Qty |
| 1 | E130424 | 雙孔端蓋灌膠套件(不含螺母) | 1 |
| 2 | 111040015 | 硅膠O形膠圈 | 2 |
| 3 | E130428 | 87W帶臭氧紫外線燈管 | 1 |
| 4 | 440422251 | 25壓緊環 | 2 |
| 5 | 111030021 | 氟橡膠O形膠圈(d24.8X?5.2) | 2 |
| 6 | E130431 | 石英管 NT-UV87-TO | 1 |
| 7 | 430221017 | 塞頭MPV04 | 2 |
| 8 | 111142482 | 膠圈 | 2 |
| 9 | 620125430 | 延伸環 | 4 |
| 10 | 620061857 | 25管接頭 | 2 |
| 11 | E190201 | 2.0寸進出水口 | 2 |
| 12 | 111202472 | 硅膠O形膠圈(D76*?6) | 2 |
| 13 | 620165430 | 固定環 | 2 |
| 14 | 430170986 | 螺母 | 2 |
| 15 | 105004779 | 電纜線 | 1 |
| 16 | 620145462 | 不銹鋼管焊螺絲 | 1 |
| 17 | E130404 | 固定卡套件 | 2 |
| 18 | E130402 | UV87-TO鎮流器套件 | 1 |
| 19 | E130407 | 接地線 | 1 |
| 20 | 620135467 | 氣孔端蓋 | 1 |
| 21 | 430170635 | 1.5寸螺母 | 2 |
| 22 | 108275466 | 氣咀 | 1 |
| 23 | 105021259 | 電纜線連法式防水直插頭 | 1 |
| 24 | E130403 | 臭氧套件 | 1 |
| 25 | 430300943 | 管接頭1.5inch/GB50 | 1 |























